Descripción
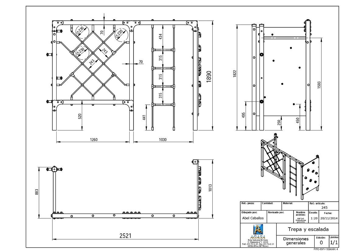
Compuesto por: Una rampa rocódromo, una escalera de cuerdas, red de escalada, barras para hacer bíceps y volteretas.
Materiales:
- Estructura: en madera de Pino Flandes, tratado en autoclave clase de riesgo IV siguiendo el proceso vacío-presión-vacío, que garantiza su durabilidad frente a la pudrición en contacto con el suelo y con fuentes de humedad según EN/335.2.92 posteriormente pintado con lasur (protector para exterior).
- Piezas metalicas: en acero inoxidable AISI304L.
- Cuerda: Cuerda de hilos de 16 mm con alma de acero. De multifilamento trenzada y recubierta de polipropileno.
- Casquillos de unión: de aluminio prensado.
- Pared rocodromo: fabricada en contrachapado laminado hidrófugo de 21mm de espesor antideslizante.
- Piedra rocodromo: en polietileno de alta densidad, libre de mantenimiento y antigraffiti, revestida de caucho antideslizante.
- Tornillería en acero inoxidable/electro zincada.
- Anclajes: Suelo duro – atornillar / Suelo blando – enterrar / Anclaje especial para encima de azotea y parking (no incluido en precio).
- Si el equipo está sujeto a un uso severo, se aconseja incrementar el plan de mantenimiento.
Todo el material es 100% reciclable.












